231 Bethany Road #310

Burbank, CA 91504

$ 645,000

Price

2

Beds

2

Baths

1,034 Sq. Ft.

$624 / Sq. Ft.

Zillow Price Estimate - $654,300

531 Days On Market

Favorite

Share

Bethany Woods North Building

Have You Been Pre-Qualified? Start Now

Listing provided by agent Matthew Oksas BRE# 01437004 at Irongate Real Estate and Tyler Kruse BRE# 02045268 at Irongate Real Estate.

Last Updated: 519 days ago

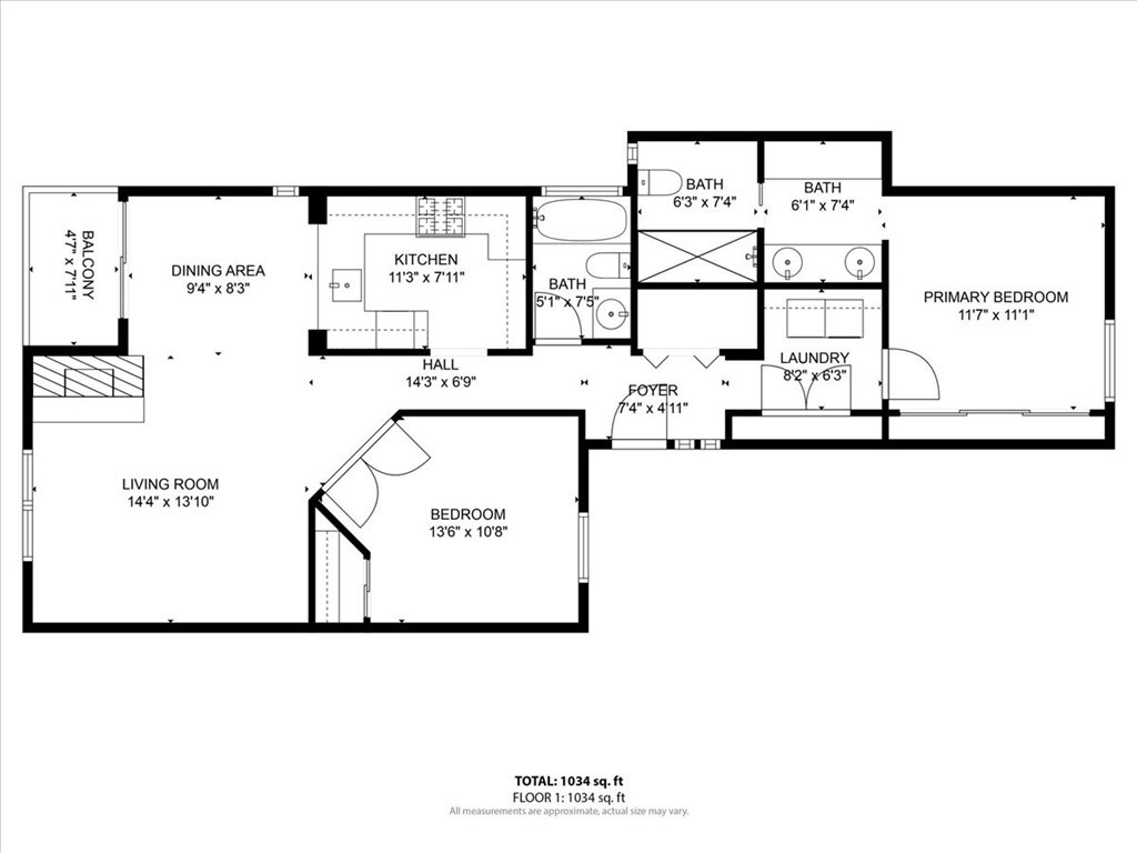
Well maintained penthouse level Bethany Woods North condominium with open floorplan, plenty of natural light and spectacular city views. Upgrades include new water heater, new lighting kitchen and bathrooms, new forced air, fresh interior paint and new exterior door. This spacious stand alone end unit features an inviting family room with cozy fireplace, high ceilings and formal dining area balcony access. Full laundry included discreetly off the hallway with extra storage. Large primary suite with ample closet space and ensuite bathroom with dual sinks. HOA offers open courtyard with picnic area and ADA access hot tub. Gated subterranean parking includes 2 spaces with exterior storage locker. Walking distance to transit, shopping, restaurants, Burbank High School, McCambridge Park/Burbank Tennis Center adjacent, and proximity to Downtown Burbank and major studios, including Disney and Warner Bros.

Show More
Property Type Condominium
Lot Size 31,176 sq. ft.
Year Built 1981
MLS # SB24096967
Listing Type Closed
Heating Central
Cooling Central Air
Pool Association, See Remarks
Laundry Dryer Included, Washer Included
Gated Community Yes

Payment Calculator

40% Complete (success)
80% Complete (danger)
20% Complete
80% Complete (danger)
60% Complete (warning)
Principal and Interest
Property Taxes
Homeowners' Insurance
HOA Dues
Mortgage Insurance
Image Calculator Icon Customize Calculations | Compare Mortgage Rates

Property Details for: 231 Bethany Road #310

Interior Features

Bathroom Information
  • 2 full baths
Laundry Information
  • Dryer Included
  • Washer Included
Fireplace Information
  • Living Room
Heating & Cooling
  • Central Air
  • Central

Parking / Garage, Multi-Unit Information, Location Details

Community Features
  • Units in Complex (Total) 30

Exterior Features

Pool & Spa Information
  • Association
  • See Remarks
Building Information
  • Total Floors: 3

Property / Lot Details

Property Features
  • City Lights
  • Park/Greenbelt
Lot Information
  • Lot Size (Sq. Ft) 31,176
Property Information
  • Tax Parcel Number: 2460010076

Recently Sold Homes Near 231 Bethany Road #310

Nearby Businesses

  • Grocery Stores
  • Drug Stores
  • Coffee Shops
  • Restaurants
  • Health & Medical
  • Fitness & Activity
  • Arts & Entertainment
  • Nightlife & Bars
    Browse all businesses in Burbank, CA, 91504

    Tour This Condo

    SATURDAY

    24

    JAN

    SUNDAY

    25

    JAN

    MONDAY

    26

    JAN

    TUESDAY

    27

    JAN

    WEDNESDAY

    28

    JAN

    THURSDAY

    29

    JAN

    FRIDAY

    30

    JAN

    Schedule A Tour
    Ryan Case, Licensed Realtor & Team Lead

    Ryan Case

    Licensed Realtor & Team Lead

    213-449-4909 Contact Ryan Case
    Listing provided by agent Matthew Oksas BRE# 01437004 at Irongate Real Estate and Tyler Kruse BRE# 02045268 at Irongate Real Estate.

    Last Updated: 519 days ago